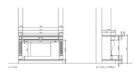
CHIMENEA DE MÁRMOL NEGRO MARQUINA PULIDO
Fabricación a medida de chimenea de mármol negro marquina y acabado pulido.
A partir de los planos facilitados por el cliente con detalles de medida y unos diseños 3D simples, procedimos a la fabricación de la chimenea.









